Lot 216 Winningham Estates - Lindsey B
Winningham Estates Subdivision Section F
944 Collie Drive, Nesbit, MS, United States, 38651
| Listing Price: | $349,900 |
|---|---|
| Incentive: | $0 |
| Total Price: | $349,900 |
| Build: | Spec Home/Unit |
| Type: | Single Family |
| Bedrooms: | 3 |
| Bathrooms: | 2 |
| NHLS ID: | #650323 |
Description
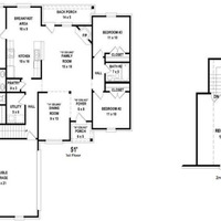
This beautiful home offers an open concept floor plan with the kitchen and eating area looking in the family room with fireplace. Walking into the home you will see LVP flooring throughout the foyer, family room, formal dining room, kitchen with eating area, and hallways. The kitchen contains stainless steel appliances with granite counter tops.
The master bedroom is on one side of the home with a large master bath with a stand-alone tub and tile shower. Share a vanity with two sinks and a large walk-in closet. On the other side of the downstairs, you will find two additional bedrooms and a bathroom. There is also a large pantry and utility room with LVP flooring. Upstairs you will find a large recreational room with closet (4th bedroom).
Pricing Details
| Listing Price: | $349,900 |
|---|---|
| List Price Includes: | House and Lot |
| Home Owners Association: | $300 (Annually) |
Interior
| Number Of Floors: | 2.0 |
|---|---|
| Area Above Grade: | 2017 sq ft (187 m²) |
| Total Finished Area: | 2017 sq ft (187 m²) |
| Goods Included: | Air Conditioning – Central, Ceiling Fan, Dishwasher – Built In, Garage Opener – 2 Remote, Microwave Oven, and Stove – Electric |
| Number Of Fireplaces: | 1 |
| Bedrooms: | 3 |
|---|---|
| Full Bathrooms: | 2 |
| Half Bathrooms: | 0 |
| Other Rooms: | Entrance, Family Room, Formal Dining Room, Kitchen, Laundry Room, and Recreational Room |
Exterior
| Amenities: | Appliances Included |
|---|---|
| Construction Types: | Concrete and Wood Frame |
| Lot Size: | 11633.0 ft ( m) x 0.0 ft (0.0 m) |
|---|---|
| Exteriors: | Brick |
| Parking: | Double Garage Attached |
| Utilities: | Gas, Public Sewer, Public Water, and Standard Electric |
Warranty
Legacy New Homes, LLC not only offers a one year builder warranty, but also a 2-10 Maverick Warranty.

































