2203 Harrison - B1
Risse
842 Sunrise Dr, Frankfort, IN, United States, 46041
| Listing Price: | $292,211 |
|---|---|
| Incentive: | $0 |
| Total Price: | $292,211 |
| Build: | Spec Home/Unit |
| Type: | Single Family |
| Bedrooms: | 4 |
| Bathrooms: | 2.5 |
| NHLS ID: | #749031 |
Description
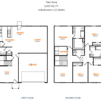
Model 2203 B1 - Harrison
The Harrison Plan from our Liberty Series offers a perfect blend of comfort, practicality, and exceptional value. This 2-story home features 4 bedrooms, 2.5 bathrooms, a 2-car garage, and 2,203 square feet of thoughtfully designed living space. As you step inside, you’ll pass the versatile flex room before reaching the staircase to the upper level, a convenient closet, and half bathroom. The heart of the home is the open kitchen and living area, complete with a central island, a dining area, and a spacious family room — perfect for entertaining or relaxing with loved ones. Upstairs, the private primary suite awaits, featuring an en suite bathroom. Three additional bedrooms, one more full bathroom, a loft area for additional living space, and a convenient laundry room complete the upper level.
Pricing Details
| Listing Price: | $292,211 |
|---|---|
| List Price Includes: | House and Lot |
Interior
| Number Of Floors: | 2.0 |
|---|---|
| Area Above Grade: | 2203 sq ft (205 m²) |
| Total Finished Area: | 2203 sq ft (205 m²) |
| Goods Included: | Air Conditioning – Central, Dishwasher – Built In, Microwave Oven, and Stove – Electric |
| Bedrooms: | 4 |
|---|---|
| Full Bathrooms: | 2 |
| Half Bathrooms: | 1 |
Exterior
| Amenities: | Appliances Included |
|---|---|
| Construction Types: | Wood Frame |
| Exteriors: | Composition and Fiber Cement Siding |
|---|---|
| Foundation: | Concrete Slab |
| Parking: | Double Garage Attached |
| Utilities: | Gas, Public Sewer, Public Water, and Standard Electric |
Warranty
2-10 Home Buyer Warranty. Please visit our website at NationalHomeCorp.com for more information. Warranty timelines are dependant on state requirements.







